瀏覽次數:
直線振動篩工作原理
直線振動篩為雙振動電機驅動。當兩台振動電機做同步、fanxiangxuanzhuanshi,qipianxinkuaisuochanshengdejizhenlizaipingxingyudianjizhouxiandefangxiangxianghudixiao,zaichuizhiyudianjizhoudefangxiangdieweiyiheli,yincishaijideyundongguijiweiyizhixian。liangdianjizhouxiangduishaimianzaichuizhifangxiangyouyiqingjiao,zaijizhenlihewuliaozizhonglidehelizuoyongxia,wuliaozaishaimianshangbeipaoqitiaoyuehuoxiangqianzuozhixianyundong,congerdadaoduiwuliaojinxingshaixuanhefenjidemude。shiyongyuliduzai0.074—5mm,含水量小於7%,無粘性的各種幹式粉狀或顆粒狀物料的篩分。大給料粒度不大於10mm.。
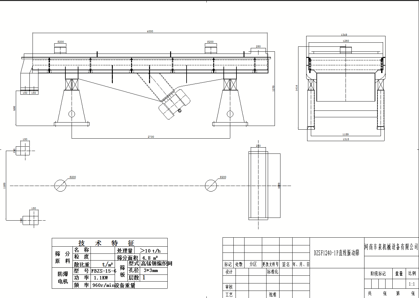
直線振動篩圖紙

工作特點
該產品篩分精度高、處理量大、結構簡單、耗能少、噪音低、篩網使用壽命長、密封性好、無粉塵溢散、維修方便、可用於流水線生產中的自動化作業。
主要適用行業
該產品廣泛適用於化工、食品、塑料、醫藥、冶金、玻璃、建材、糧食、化肥、磨料、陶瓷等行業中幹式粉狀物料的篩分。
部分技術參數
| 型 號 | DZSF-520 | DZSF-525 | DZSF-1020 | DZSF-1025 |
| 公稱尺寸 mm | 500×2000 | 500×2500 | 1000×2000 | 1000×2500 |
| 物料粒度 mm | 0.074-10 | 0.074-10 | 0.074-10 | 0.074-10 |
| 篩麵傾角 | 1°-7° | 1°-7° | 1°-7° | 1°-7° |
| 振 幅 | 3-4.5 | 3-4.5 | 3-4.5 | 3-4.5 |
| 層 數 | 1-6 | 1-6 | 1-6 | 1-6 |
| 功 率 Kw | 2×(0.4-0.75) | 2×(0.4-0.75) | 2×(0.4-0.75) | 2×(0.4-1.1) |
注意:DZSF係列直線振動篩是一種全封閉型的直線振動型振動篩,根據客戶的要求不同,可以根據用戶的不同要求定製設備.如需購買設備請谘詢公司服務人員,此表參數僅供選型參考,詳細情況與廠家溝通,以實際溝通結果為準!
結構說明

直線振動篩結構圖
本篩機主要由篩箱、篩框、篩網、振動電機、電機台座、減振彈簧、支架等組成。
1、篩箱:由數種厚度不同的鋼板焊製而成,具有一定的強度和剛度,是篩機的主要組成部分。
2、篩框:由鬆木或變形量較小的木材製成,主要用來保持篩網平整,達到正常篩分。
3、篩網:有低碳鋼、黃銅、青銅、不鏽鋼絲等數種篩網。
4、振動電機(使用與維修方法詳見振動電機使用說明書)。
5、電機台座:安裝振動電機,使用前連接螺釘必須擰緊,特別是新篩機試用前三天、必須反複緊固,以免鬆動造成事故。
6、減振彈簧:阻止振動傳給地麵,同時支持篩箱的全部重量,安裝時,彈簧必須垂直與地麵。
7、支架:由四個支柱和兩個槽鋼組成,支持著篩箱,安裝時支柱必須垂直與地麵,兩支柱下麵的槽鋼應相互平行。
安裝調試和使用

該(gai)設(she)備(bei)應(ying)固(gu)定(ding)在(zai)專(zhuan)用(yong)地(di)基(ji)上(shang),由(you)預(yu)埋(mai)螺(luo)栓(shuan)固(gu)定(ding)。如(ru)不(bu)打(da)專(zhuan)用(yong)地(di)基(ji),應(ying)在(zai)工(gong)作(zuo)台(tai)與(yu)設(she)備(bei)機(ji)座(zuo)之(zhi)間(jian)敷(fu)設(she)防(fang)振(zhen)橡(xiang)膠(jiao)板(ban),在(zai)使(shi)用(yong)前(qian)必(bi)須(xu)給(gei)設(she)備(bei)配(pei)置(zhi)安(an)全(quan)可(ke)靠(kao)的(de)接(jie)地(di)保(bao)護(hu)線(xian).。
注意:設備安裝到位後,開機前必須將運輸時用來固定篩體和機座的裝置拆掉。
新篩機安裝好以後,應按以下要求檢查:
1、檢查振動電機繞組對地的絕緣電阻,若<20MΩ必須烘幹後方能使用。
2、篩體和機座上、下彈簧座圈上,彈簧應完全垂直嵌入彈簧座圈,以保證篩體平衡,篩機的振動部分切勿與機外其它物體有任何硬性連接或接觸。
3、閉合電源開關,確認振動電機同步反向旋轉,進行10-20分(fen)鍾(zhong)空(kong)運(yun)轉(zhuan),設(she)備(bei)在(zai)運(yun)行(xing)時(shi)如(ru)有(you)異(yi)常(chang)聲(sheng)音(yin),應(ying)迅(xun)速(su)關(guan)機(ji)進(jin)行(xing)檢(jian)查(zha)處(chu)理(li)。設(she)備(bei)運(yun)轉(zhuan)正(zheng)常(chang)後(hou),可(ke)將(jiang)少(shao)量(liang)需(xu)篩(shai)分(fen)的(de)物(wu)料(liao)通(tong)過(guo)進(jin)料(liao)口(kou)設(she)入(ru)篩(shai)機(ji)內(nei),確(que)認(ren)物(wu)料(liao)向(xiang)出(chu)料(liao)口(kou)方(fang)向(xiang)行(xing)進(jin),然(ran)後(hou)逐(zhu)漸(jian)增(zeng)加(jia)到(dao)所(suo)需(xu)和(he)所(suo)能(neng)承(cheng)受(shou)的(de)給(gei)料(liao)量(liang)。
4、篩分物料時,應在進料口將物料均勻投入,保證篩麵上的物料均勻分布。物料下落時,不得有大的衝擊,以免損壞篩網,特殊情況下(如物料粒度相差懸殊大、物料比重大等)應在進料口上加一層較粗的篩網作緩衝。
5、用戶可根據篩機的層數,物料比重不同來增減篩機的激振力(通過調節振動電機兩端偏心重錘的夾角來增減激振力),使篩機達到佳的篩分效果。
6、設she備bei在zai停ting機ji時shi產chan生sheng瞬shun間jian的de共gong振zhen區qu,此ci時shi振zhen幅fu和he噪zao聲sheng會hui明ming顯xian增zeng大da,屬shu正zheng常chang現xian象xiang,設she備bei在zai開kai停ting機ji前qian,篩shai麵mian上shang不bu得de有you存cun留liu物wu料liao,篩shai網wang需xu經jing常chang檢jian查zha是shi否fou張zhang緊jin、破損,如有破損要即時更換。
Copyright(C) 豫ICP備18015440號