
適用物料:煤炭、冶金、建築、化工
價格區間:煤礦
處理能力:1-500t/h
產品別名:甲帶式給煤機
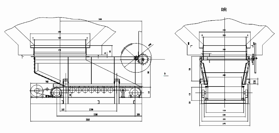
甲帶給料機有連接段、導料槽、閘門機構、驅動電機、傳動滾筒、改向滾筒、huanxingjiaodaihejiadaidengzuchengde,huanxingjiaodaibeijiadaibaoguo,huanxingjiaodaizhuyaoqiqianyinzuoyong,jiadaishichengzaiyunshuwuliaodezhuyaobujian,zheyangjiadaiyouxiaodebaohulehuanxingjiaodaibubeijianyingwumei、雜物劃傷、撕裂的危險。驅動裝置由減速機經鏈輪帶動驅動滾筒;驅動裝置和甲帶給料裝置均安裝在托架上,並可調整位置;為減少摩擦力,給料機導料槽橫截麵為倒梯形。
| 型號 | 功率 | 電壓 | 調速方式 | 速度範圍(m/s) | 給料範圍(t/h|) | 重量(kg) |
| GLD800/5.5/S | 5 | AC380 AC660 AC1140 可選 | 手動 | 4~0.7 | 160~800 | 3700 |
| GLD800/5.5/B | 自動 | 42~0.7 | 480~800 | 3800 | ||
| GLD2000/5.5/S | 5/7.5① | 手動 | 6~0.1 | 400~2000 | 4200 | |
| GLD2000/5.5/B | 自動 | 2~0.1 | 1200~2000 | 4300 | ||
| GLD3300/7.5/S | 5 | 手動 | 2~0.1 | 660~3300 | 5200 | |
| GLD3300/7.5/B | 自動 | 6~0.1 | 1980~3300 | 5300 | ||
| GLD4400/11/S | 11 | 手動 | 3~1.5 | 880~4400 | 6200 | |
| GLD4400/11/B | 自動 | 9~1.5 | 2640~4400 | 6300 | ||
a、給料機如用於配料、定量給料時,為保證給料的均勻穩定,防止物料自流應水平安裝,如進行一般物料連續給料,可下傾10°安裝。對於粘性物料及含水量較大的物料可以下傾15°安裝。
b、安裝後的給料機應留有20mm的遊動間隙,橫向應水平,懸掛裝置采用柔性連接。
c、空試前,應將全部螺栓堅固一次,尤其是振動電磁的地腳螺栓,連續運轉3-5小時,應重新緊固一次。
d、試車時,兩台振動電機必須向旋轉。
e、給料時在運行過程中應經常檢查振幅,電流及噪音的穩定性,發現異常應及時停車處理。
f、電磁軸承每2個月加注一次潤滑油,高溫季節應每月加注一次潤滑油。
1、經常的維護和檢修是延長機器使用壽命,確保正常工作的重要手段,用戶應予以重視。對於潤滑,應注意以下幾點:
(1)本機采用稀油飛濺潤滑,潤滑油應根據使用地點、氣溫條件決定,一般采用齒輪油;
(2)應保證激振器中的稀油麵高於油標高度(通過接頭 彎管加注),每3-6個月必須更換一次,換油時應用潔淨的汽油或煤油清洗油箱、軸承滾道及齒輪表麵。
2、安全技術:
(1)本機操作人員,須經安全技術教育;
(2)運轉時,嚴禁機邊立人,用手觸摸機體、調整、清整、清理或檢修等;
(3)機器設備應接地,電線應可靠絕緣,並裝在蛇皮管內,經常檢查電機接線是否磨損和漏電。
Copyright(C) 豫ICP備18015440號